von surfende Schafen, landenden Eiern und metamorphosierenden Fenstern
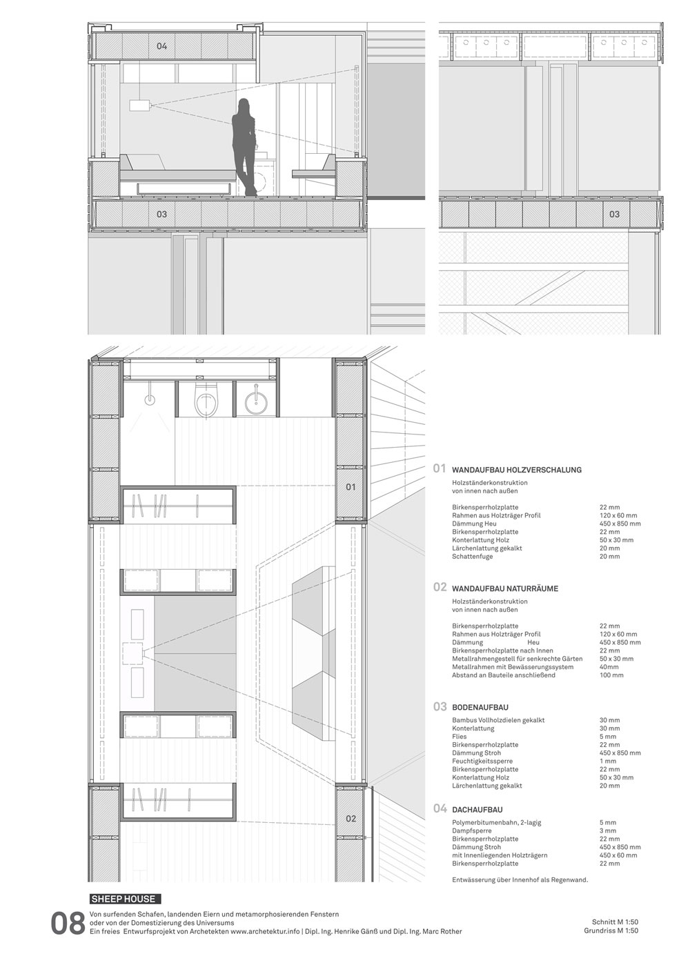
Das HoneyHayHouse versucht die ländlichen Alltagsprozesse, das Zusammenleben mit Tieren und Pflanzen in ein heiter intelligentes System zu übersetzen. Die Architektur wird zu einem Vermittler, zu einem Vehikel, den Menschen wieder mit dem Kosmos zu verbinden. Architektur ist für uns nicht Mittel zum Zweck, sondern Mittler zum Sinn. Es werden durch die Architektur Erfahrungen ermöglicht. Erfahrungen, die man nur auf dem Land machen kann. Denn wo sonst können Schafe im www surfen und Häuser dämmen, Hühner fröhliche Eier in die Küche bringen, Fenster Metamorphosen durchlaufen und der Regen von den Höhen trommeln, aus denen er fällt, als im suburbanen Raum.
